caracas. venezuela
Una nueva familia adquiere un Apartamento (325m2), pero para adaptarlo a sus propias necesidades consulta a CUBO arquitectura para dicho proyecto.
La principal preocupación era redistribuir el cuarto principal, su baño y el Walk-in closet, brindando mayor espacio, un baño mas integrado y con acabados de lujo.
La principal preocupación era redistribuir el cuarto principal, su baño y el Walk-in closet, brindando mayor espacio, un baño mas integrado y con acabados de lujo.
Igualmente el pasillo entre las habitaciones, se transformaría en un TV room para la familia, quedando todas las habitaciones para los hijos y huespedes. El área de la cocina/servicio también se transforma, generando un espacio más noble para el personal de servicio, donde además puedan tener privacidad.
estatus: en construcción (feb 2015)
planta original
demolición arquitectura
planta - nueva arquitectura
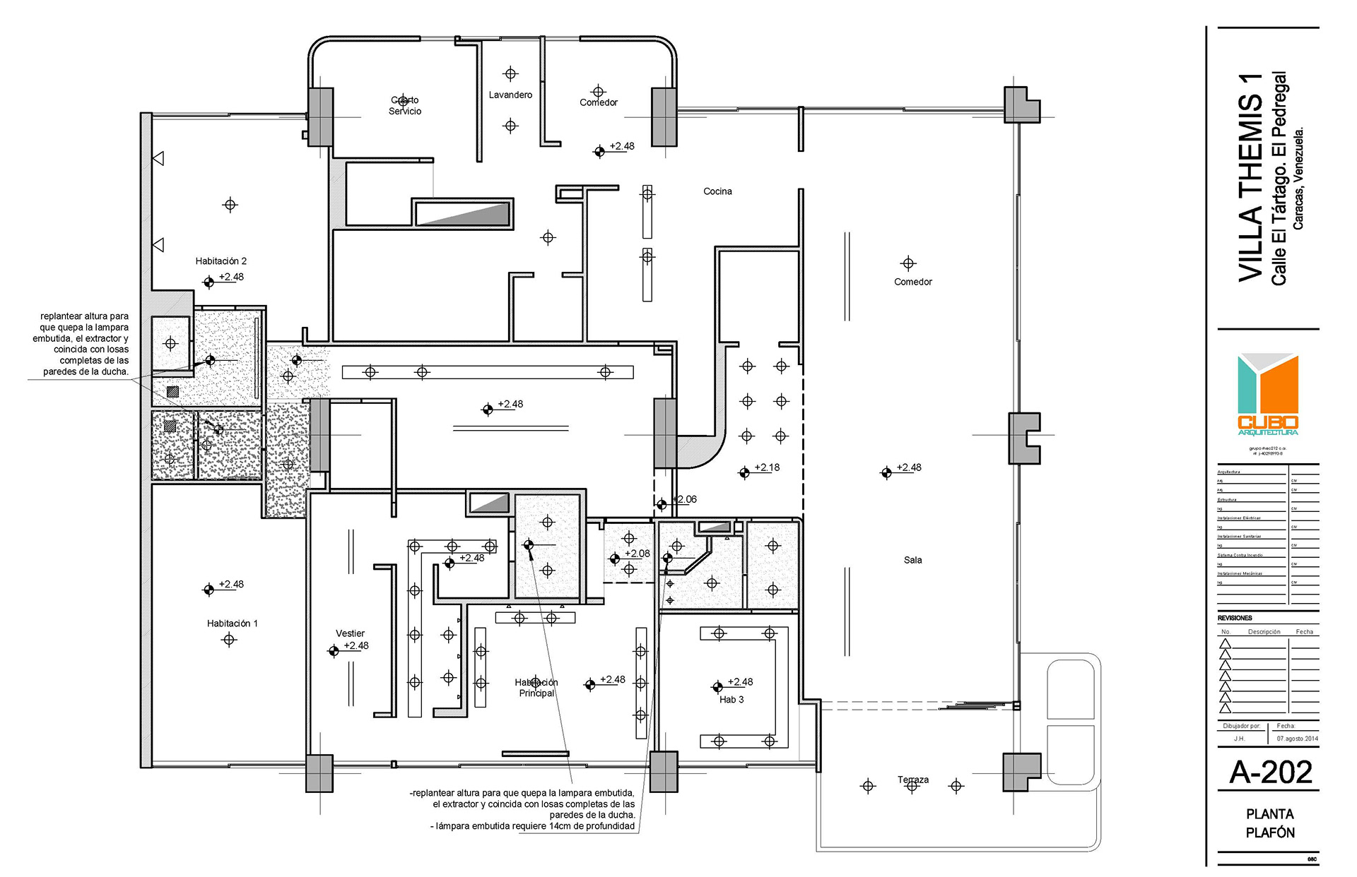
RCP / Planta Iluminación
Propuesta acabados - Baño Hab Principal
Computos - Material Baños
Alzados / Vistas
Alzados / Vistas - Hab Principal
Alzados / Vistas - Baño Hab Principal
Alzados / Vistas - Baño Hab Principal
Alzados / Vistas - Baño Hab Principal - Propuesta Acabados
Alzados / Vistas - Baños
Alzados / Vistas - Habitacion Secundaria