residencias estudiantiles
dormitories
Caracas, Venezuela (2007)
 
Proyecto desarrollado por los arquitectos Andreina Rodriguez (lider de proyecto) y Jorge Herrera (colaborador) para Cooperativa Espacio Arquitectónico Integral.
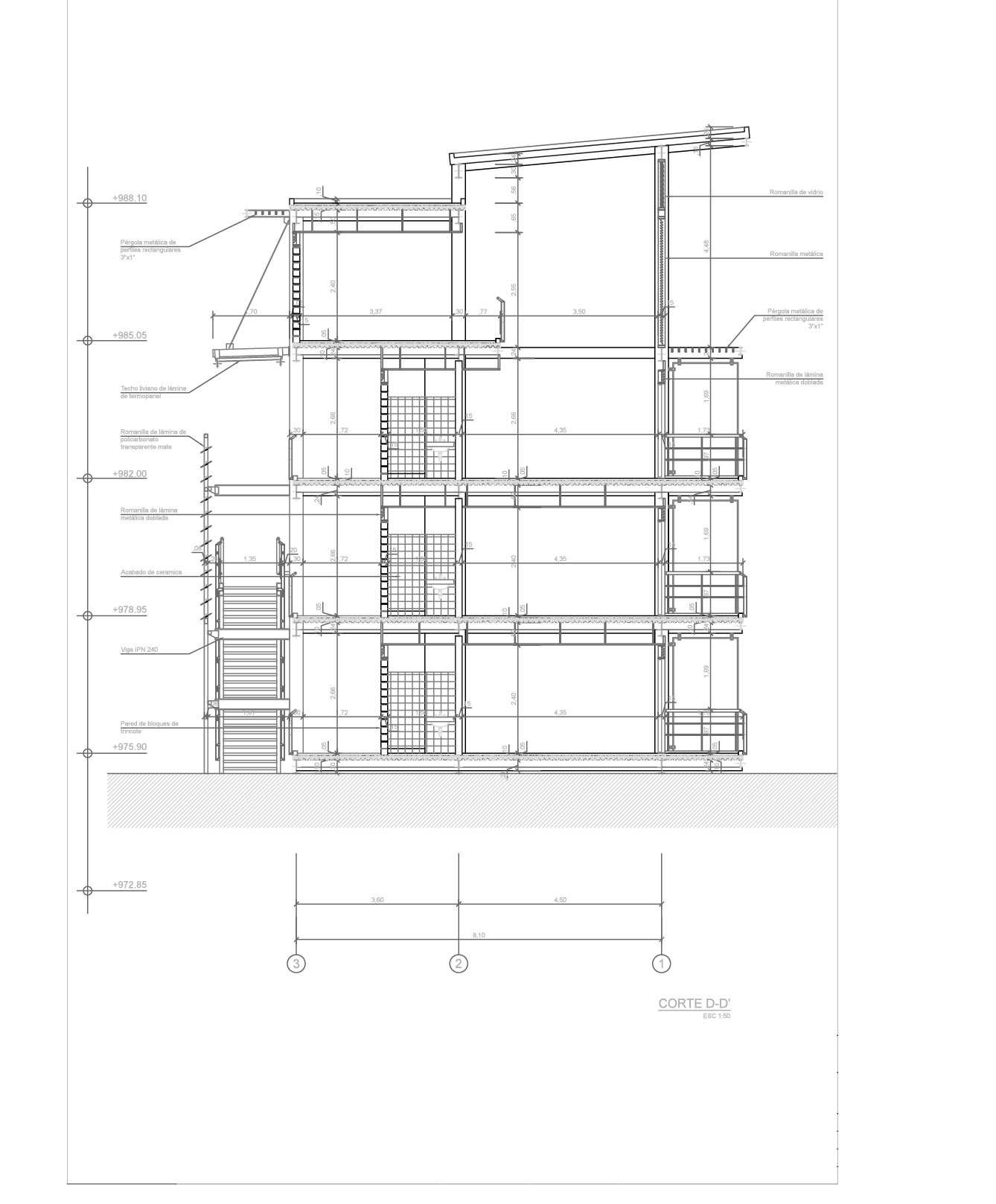
Ubicado dentro del Núcleo de Desarrollo Endógeno Fabricio Ojeda, el proyecto contempla 3 volúmenes paralelos e iguales, que se encuentran en una pendiente y que se adaptan a la topografía. El acceso a estos volúmenes es desde el nivel superior, ubicado a nivel de calle. Cada edificio contiene dormitorios dúplex y sencillos, cocina, comedor, una sala de computación y un cuarto de lavanderia.
 
estatus: proyecto
Back to Top